-  Semi Detached House
-  3 Bedrooms
-  2 Reception Rooms
                                            -  Great Extension Potential (subject to usual permissions)
-  Larger Rear Garden
-  Off Street Parking & Garage
 
                                 
                                
                                
                                
                                    Aubrey Lee & Co are delighted to bring to the market this nicely presented semi detached house which benefits from three bedrooms and two reception rooms, the property offers great development potential to both the side and rear as there is generously proportioned well kept garden to the rear. The location offers convenient access for local shops, schools, places of worship along with Bowker Vale Metrolink Station, Heaton Park is also a short distance away.
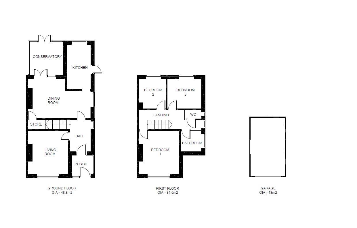
The accommodation briefly comprises of:- Porch, Hall, Lounge, Dining Room, Conservatory, Kitchen, Bedroom 1, Bedroom 2, Bedroom 3, Bathroom, Separate WC, Garden to rear and Off Street Parking to the front.
Viewings can be arranged by calling the office of Aubrey Lee & Co
                                
                                
                                
                                
                                
                                    
                                        Location
Situated on the bend of Windsor Crescent and occupying a corner plot, Windsor Crescent is accessed via Windsor Road.
Porch
Space for coats/shoes, door to:-
Hall
A welcoming hallway with the stairs leading up centrally between the two reception rooms, parquet flooring and pannelled doors to all rooms.
Lounge
Front facing room with the parquet flooring continuing through from the hall, decorative fireplace and ample space for lounge furniture.
Dining Room
Rear and side facing room offering ample space for furniture, again the focal point of the room is the fireplace, this one has a working open fire. French windows open to the conservatory and there is also a door to the kitchen.
Conservatory
A useful extra space with French doors opening the garden, space and plumbing for a washing machine.
Kitchen
Fitted with a range of wood fronted wall and base units with an inset sink and mixer tap, integrated oven with 4 ring hob and extractor hood above. Integrated dishwasher, tiled floor and splashbacks along with space for for a fridge/freezer. Door to the side and window overlooking the garden.
3 Bedrooms
Bedroom 1
Front facing double bedroom with fitted robes and drawers.
Bedroom 2
Rear facing larger single/smaller double bedroom.
Bedroom 3
Rear facing single bedroom.
Bathroom
Consisting of a white suite of bath with shower attachment, matching washbasin. Frosted window and tiled splashbacks.
Separate Wc
To match the bathroom suite, frosted window and part tiled walls.
Garden
To the rear of the property from the kitchen door is a paved area which extends round to a seating area, there are steps down to an extensive lawned garden with shrubbery borders and flowerbeds. There is ample space to the side and the rear allowing great potential for extension (subject to permissions) side access gate to the front of the property where there is a tarmac driveway leading down to a detached garage.
Heating
Gas central heating
Windows
Sealed unit double glazing in upvc frames.
Council Tax
Band C
Tenure
We understand that the property is leasehold subject to a 999 year lease which commenced in 1953 and has an annual ground rent of £5.
                                    
                                
                                
                                
                                    
Council Tax
Bury Metropolitan Borough Council, Band C
Ground Rent
£5.00 Yearly
Lease Length
999 Years
Notice
Please note we have not tested any apparatus, fixtures, fittings, or services. Interested parties must undertake their own investigation into the working order of these items. All measurements are approximate and photographs provided for guidance only.
                                
                                
                                
                                                                
                                    
                                    
                                
                             
                                                                
                                
	
                                        
                                        
                                            
                                            /// assets.news.trip is the what3words address for the best entrance. what3words has given every 3 metre square in the world a unique combination of 3 random words. 
  
                                
                                
                            
                            
                            
                                                                
                            
                            
                                                                
                            
                            
                            
                            
                                
                                
                                    
                                        | Utility | Supply Type | 
                                    
                                        | Electric | Mains Supply | 
                                    
                                        | Gas | Mains Supply | 
                                    
                                        | Water | Mains Supply | 
                                    
                                        | Sewerage | Mains Supply | 
                                    
                                        | Broadband | Unknown | 
                                    
                                        | Telephone | Unknown | 
                                    
                                
 
                                
                                
                                
                                    
                                       | Other Items | Description | 
                                    
                                        | Heating | Not Specified | 
                                    
                                        | Garden/Outside Space | No | 
                                    
                                        | Parking | No | 
                                    
                                        | Garage | No | 
                                
 
                                
                                
                                
                                    
                                        | Broadband Coverage | Highest Available Download Speed | Highest Available Upload Speed | 
                                    
                                        | Standard | 12 Mbps | 1 Mbps | 
                                    
                                        | Superfast | 217 Mbps | 33 Mbps | 
                                    
                                        | Ultrafast | 10000 Mbps | 10000 Mbps | 
                                
            
                                
                                
                                    
                                        | Mobile Coverage | Indoor Voice | Indoor Data | Outdoor Voice | Outdoor Data | 
                                    
                                        | EE | Likely | Likely | Enhanced | Enhanced | 
                                    
                                        | Three | Enhanced | Enhanced | Enhanced | Enhanced | 
                                    
                                        | O2 | Enhanced | Enhanced | Enhanced | Enhanced | 
                                    
                                        | Vodafone | Enhanced | Enhanced | Enhanced | Enhanced | 
                                
            
                                Broadband and Mobile coverage information supplied by Ofcom.